Bel Air 27
Présentation
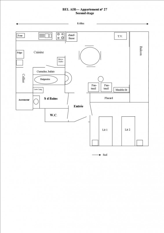
T2 (Chambre séparée) de 45 m² au calme avec parking privé, au centre de Gréoux, (petite rue en face du Casino) en exposition sud, avec grand balcon. 2eme étage avec ascenseur.
A 300 m de l'établissement thermal, résidence Bel air
A 300 m de l'établissement thermal, résidence Bel air
Appartement de type T2, à 300 mètres des thermes, sur du plat pour accéder à l'établissement thermal, avec chambre séparée, WC séparé, cuisine séparée, orientation sud. 2eme étage avec ascenseur .
Calme (en retrait de l'axe de circulation)
2 lits jumeaux. Grand balcon. Place de parking réservée à l'appartement.
Matériel bébé sur demande (lit pliant, chaise haute)
Calme (en retrait de l'axe de circulation)
2 lits jumeaux. Grand balcon. Place de parking réservée à l'appartement.
Matériel bébé sur demande (lit pliant, chaise haute)
Période(s) d'ouvertureDu 01/03 au 13/12/2026 tous les jours.
Arrivées entre 16 h et 19 h
Départs avant 10 h.
Arrivées entre 16 h et 19 h
Départs avant 10 h.
Informations
- Type de Location :
- Appartement
- Capacité :
- 45 m²
- 3 personnes
- 3 pièce(s)
- Hébergement :
- Annonce d'un particulier
Équipements & Services
- Equipements intérieurs :
- Ascenseur
- Stationnement :
- Parking
- Parking privé
- Electroménager :
- Aspirateur
- Congélateur
- Four
- Lave linge privatif
- Matériel de repassage
- Micro-onde
- Réfrigérateur
- Sanitaires :
- Baignoire
- Toilettes séparées
- 1 salle de bain (privée)
- Configuration :
- Cuisine
- Balcon
- Séjour / Salle à manger
- Cellier
- Multimédia :
- Télévision
- Accès Internet privatif Wifi
- Couchage et mobilier :
- Lit 90 cm
- Matériel Bébé
- Lit bébé
- Extérieurs :
- Salon de jardin
- Equipements de loisirs :
- Jeux de société
Bon à savoir
- Location / Prêt :
- Location de draps
- Aide au client / pratique :
- Ménage avec supplément
- Informations touristiques
- Documentation Touristique
- Type de loueurs :
- Loueur particulier
Tarifs
Taxe de séjour en supplément.
EDF sur relevé en supplément.
EDF sur relevé en supplément.
- Modes de paiement :
Contact
Van Boxsom Marie-Pierre
Adresse de la location
Avenue des Thermes
04800
Gréoux-les-Bains
- Langue(s) parlée(s) :
Destination
Avenue des Thermes
04800
Gréoux-les-Bains
Coordonnées GPS
Latitude : 43.757935
Longitude : 5.892445
Complément localisation
- Environnements :
- Centre village
- Station thermale















